최근 기준 금리가 동결 혹은 인하가 되고 일부 지역에 집값이 반등하여 청약 수요가 꿈틀거리고 있습니다. 최근 분양한 용인플랫폼시티 e편한세상의 정계약률이 낮기도 하고 아직 몇몇 지역에선 미분양이 해소되진 않았지만, 청약에 대한 관심이 커지고 있습니다. 상황상 분양 물량이 늘어날 것으로 예상됩니다. 저도 요즘 청약 캘린더와 몇몇 단지의 정보들을 자주 찾아보고 있는데요. 6월엔 수도권 경기에서 5개의 주요 단지가 분양을 앞두고 있습니다.
그곳은 바로 광명 4구역 재개발 신축단지인 광명센트럴아이파크와 경기도 파주의 운정자이 시그니처, 경기도 시흥시 은행동의 시흥롯데캐슬시그니처 1BL과 2BL, 성남시 수정구 신흥동의 성남복정 2A-1, 안양시 만안구 석수동의 안양화창지구 재개발 단지입니다.
본 포스팅에서는 많은 분들이 관심을 가지는 경기도 6월 분양 주요 단지인 광명센트럴아이파크에 대해 자세히 알아보도록 하겠습니다.
경기도 6월 분양 예정 주요단지
✅ 경기도 6월 분양예정 아파트 (시흥 롯데캐슬 시그니처)
✅ 경기도 6월 분양예정 아파트 (안양 화창지구 재개발)
광명센트럴아이파크 (광명4구역 재개발)


광명센트럴아이파크는 약 2만 5천 세대의 신흥주거타운인 광명뉴타운 내에 위치하고 있습니다. 지하 3층에서 지상 최고 36층, 총 11개 동으로 이루어진 단지입니다. 7호선 광명사거리역을 도보로 이용할 수 있는 역세권으로 매력적인 단지인데요. 1,957세대의 대단지여서 더욱 눈길이 갑니다. 대단지의 커뮤니티 및 단지 조경은 소형단지와 비교가 불가하기 때문입니다. 조감도를 보니 단지 내 상가가 스트리트몰 형식으로 구성되는 것 같습니다. 일반분양 물량이 425세대로 적은 점이 아쉽네요.
이마트와 롯데시네마를 도보로 누릴 수 있으며, 서울시와 인접하여 접근성이 아주 뛰어나기에 서울과 광명을 동시에 누리면 더블 생활권이라고 보시면 됩니다.
참고로 6월 분양을 예상하고 있지만, 7월 분양이 될 수도 있다는 점을 말씀드립니다.
1) 기본정보


- 견본주택 주소: 경기도 안양시 만안구 석수동 859-8
- 주소: 경기도 광명시 광명2동 88-14번지 일원
- 총 가구수: 1,957세대 (39㎡: 190세대 / 49㎡: 238세대 / 59㎡: 729세대 / 75㎡: 337세대 / 84㎡: 455세대 / 113㎡: 8세대)
- 일반분양 물량: 425세대 (39㎡: 106세대 / 49㎡: 185세대 / 59㎡: 32세대 / 75㎡: 34세대 / 84㎡: 61세대 / 113㎡: 7세대)
- 전용면적: 39㎡ ~ 113㎡
- 입주시기: 2025년 예정 (정확한 입주일자는 추후 공지)
- 주차대수: 2,644대(세대 당 1.36대)
- 분양문의: 031-443-1957
- 분양가: 미정
☞ 예상분양가는 다음과 같습니다. 최근 철산자이가 확장비를 포함하여 평당 3,100만원에 분양하였고 완판 기록을 세웠죠. 이를 고려했을 때 건설자재비 인상 및 공사비 인상으로 인하여 평당 약 3,200만원 수준이 아닐까 예상합니다. 59㎡은 약 7억 6천, 84㎡은 약 10억 5천 선에 형성될 것 같습니다.
완판 하기 위해서는 분양가의 적정성이 관건인 것 같습니다. 민간택지 분양가 상한제도가 폐지되었으므로 분양가 어떻게 나올지 관심이 집중되고 있습니다.
조합원분양가는 59㎡은 평당 1,734만원(약 4억 2천만원) 그리고 84㎡은 1,750만원(약 5억 8천만원)이었습니다.
2) 평면도
39㎡ 평면도
대략 아파트 16평 정도 면적입니다. 일반적인 17평대 아파트 구조랑 똑같다고 보시면 됩니다. 1인 가구가 살기 딱 좋죠.

49㎡ 평면도
대략 아파트 21평 정도 면적입니다. 거실 1개에 방 2개, 화장실 1개로 구성되어 있습니다.

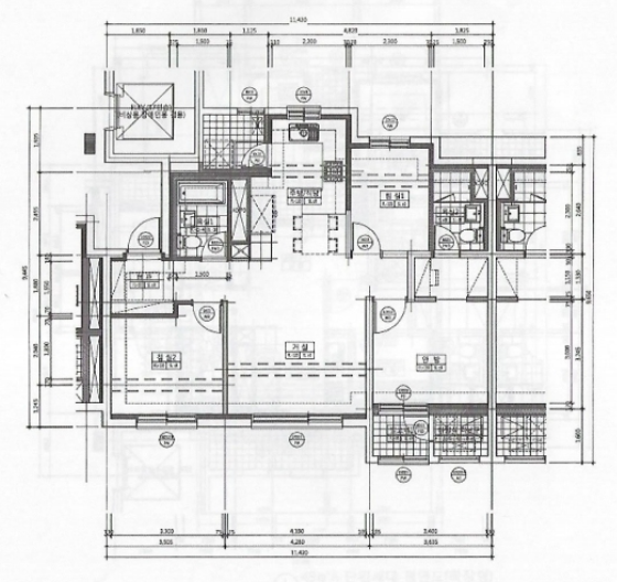
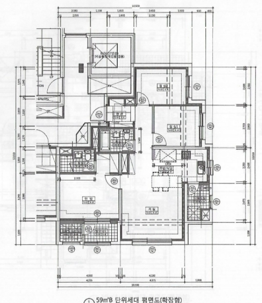
59㎡ 평면도
대략 아파트 25평 정도 면적입니다. 거실 1개에 방 3개, 화장실 2개로 구성되어 있습니다.


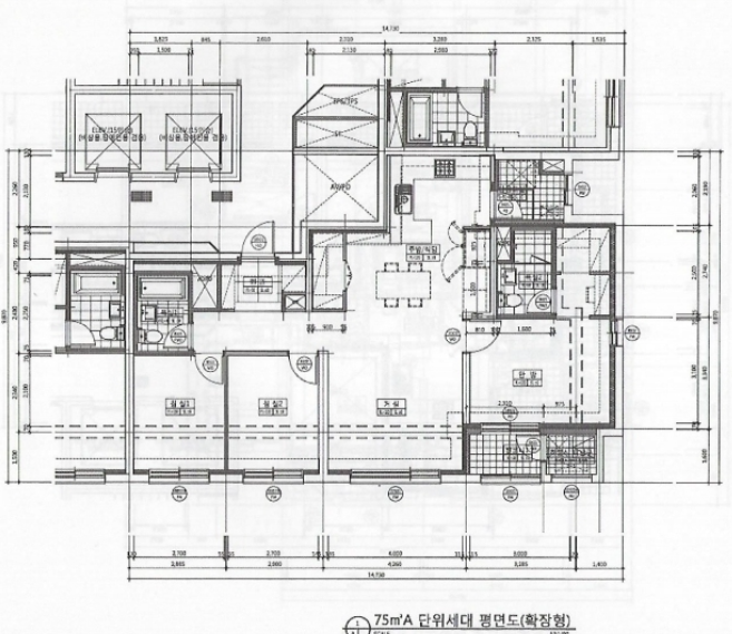
75㎡ 평면도
대략 아파트 31평 정도 면적입니다. 거실 1개에 방 3개, 팬트리 1개, 화장실 2개로 구성되어 있습니다.

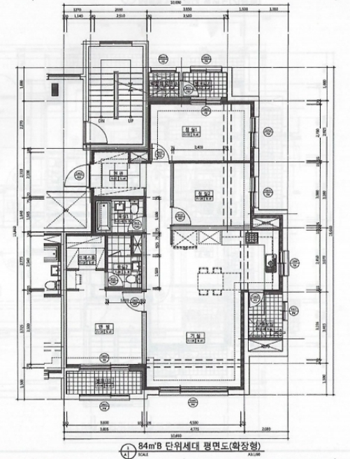
84㎡ 평면도
대략 아파트 34평 정도 면적입니다. 거실 1개에 방 3개, 알파룸 1개(A타입), 화장실 2개로 구성되어 있습니다. B타입은 A타입보다 방의 면적이 넓네요.


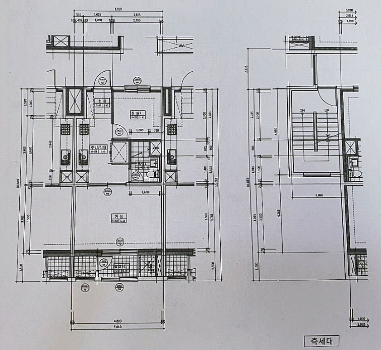
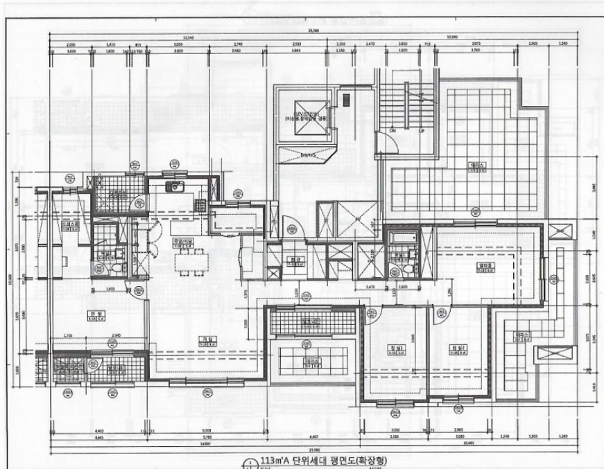
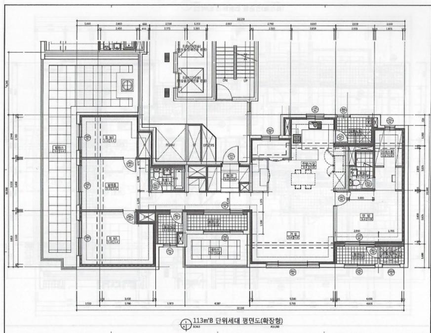
113㎡ 평면도
대략 아파트 46평 정도 면적입니다. 거실 1개에 방 4개, 화장실 2개, 발코니(테라스)로 구성되어 있습니다. 광폭 테라스와 미니 테라스가 곳곳에 있는 점이 너무 좋습니다. 집에서 힐링할 수 있는 공간이지요. 안방과 거실, 주방이 한 곳에 모여 있고 긴 복도를 따라 나머지 작은 방들 3개가 모여서 있는 구조가 매력적으로 느껴집니다. 클릭해서 확대창으로 보시길 바랍니다.


3) 입지분석
- 근처 학교: 광명초, 광명중, 광명고 등
- 교통: 광명사거리역(7호선)
교육환경은 지도에서 파란색 동그라미를 참고해 주시길 바랍니다. 단지 남쪽으로 바로 앞에 광명초등학교(약 200m)가 위치하고 있으며 광명중학교와 광명고등학교 및 광명북중학교와 광명북고등학교가 주위에 모인 학세권이라고 보시면 됩니다.
교통은 지도에서 보시듯이 7호선 광명사거리역이 도보권입니다. 단지 내에서 가장 가까운 동은 약 260m만 이동하면 광명사거리역을 이용할 수 있습니다. 여의도까지 30분, 강남까지 40분, 광화문까지 60분에 도달할 수 있습니다. 구로구는 바로 옆에 위치하여 10분에서 15분이면 도착이 가능하죠.
아파트 남쪽으로는 공원과 공공청사(파출소 및 복합커뮤니티센터) 그리고 종교시설이 계획되어 있습니다. 남동쪽(파란색 화살표 쪽)으로는 광명시청이 위치하고 있죠. 그 부근에 광명중학교와 광명고등학교가 위치하고 있습니다.

일시적 1가구 2주택 비과세 요건 (2023 최신)
지난 2023년 1월 12일 기획재정부에서 일시적 1가구 2주택자의 특례 요건 중 종전주택 처분기한을 3년으로 연장하겠다고 발표했습니다. 기존엔 종전주택 처분기한이 2년이었는데 부동산 시장이 안
pitapatmyday.com
2023 부동산 취득세율, 취득세 감면 대상 총정리 (최신)
2022년 12월 21일 수요일에 행정안전부에서 부동산 취득세율을 완화하는 개정안을 발표하였습니다. 조정지역대상에서는 2주택부터 취득세가 중과되었기에 주택구입에 부담을 느끼고 일시적 1가
pitapatmyday.com
'모르면 손해인 경제 정보 > 일반 경제' 카테고리의 다른 글
| 경기 6월 분양예정 아파트 (시흥 롯데캐슬 시그니처) (0) | 2023.06.17 |
|---|---|
| 경기 6월 분양예정 아파트 (성남 복정 2A-1, 성남복정 2지구) (0) | 2023.06.11 |
| 경기도 6월 분양예정 아파트 (운정자이 시그니처) (0) | 2023.06.06 |
| 서울 6월 분양예정 아파트 (힐스테이트 e편한세상 문정) (0) | 2023.06.05 |
| 서울 6월 분양예정 아파트 (청량리 롯데캐슬 하이루체) (0) | 2023.06.05 |
댓글