서울 분양시장에 훈풍이 느껴집니다. 서울 부동산은 항상 매력적이기에 저도 정보를 탐색하며 호시탐탐 분양 기회를 노리고 있는데요. 6월에는 서울 내에 5개의 주요 단지가 분양을 앞두고 있습니다.
그곳은 바로 송파구 문정동 일대 재건축 사업인 힐스테이트 e편한세상 문정, 서대문구 남가좌동 DMC 가재울 아이파크와 동대문구 청량리7구역 재개발 단지인 청량리 롯데캐슬 하이루체, 자양1 재정비촉진지구인 구의역 롯데캐슬 이스트폴 그리고 신림3구역 재개발 단지인 서울대벤처타운역 푸르지오입니다.
본 포스팅에서는 서울 6월 주요 분양 단지 중 힐스테이트 e편한세상 문정에 대해 자세히 살펴보도록 하겠습니다.


✅ 서울 6월 분양예정 아파트 (DMC 가재울 아이파크)
✅ 서울 6월 분양예정 아파트 (청량리 롯데캐슬 하이루체)
✅ 서울 6월 분양예정 아파트 (구의역 롯데캐슬 이스트폴)
✅ 서울 6월 분양예정 아파트 (서울대벤처타운역 푸르지오)
힐스테이트 e편한세상 문정 (서울시 송파구 문정동)


부동산 어플인 호갱노노에서 가장 뜨거운 단지 중 하나입니다. 제가 사랑하는 대단지이며, 눈여겨보고 있습니다. 총세대수에 비해 일반분양 물량이 아쉽기만 합니다. 지하 2층부터 최고 지상 18층의 14개 동으로 이루어져 있으며, 국내 대형 건설사인 현대엔지니어링과 DL이앤씨가 만나 시공되는 아파트입니다. 후분양이기 때문에 자금 준비가 타이트하게 이루어져야 겠죠.
1) 기본정보
- 주소: 서울특별시 송파구 송이로31길 22 (송파구 문정동 136)
- 총 가구수: 1265세대
- 일반분양 물량: 296세대 (49㎡: 177세대 / 59㎡: 68세대 / 74㎡: 51세대)
- 전용면적: 49 ~ 84 ㎡ (49㎡: 350세대 / 59㎡: 505세대 / 74㎡: 307세대 / 84㎡: 103세대)
- 입주시기: 2024년 6월 예정 (청약 후 1년 뒤 입주)
- 주차대수: 총 1431대 (세대당 1.13대)
- 분양가: 평균 평당가 35,823,906원
☞ 예상 분양가는 아래 공문에 따르면 다음과 같습니다. 평당 평균 분양가는 35,823,906원으로 전용 면적 59㎡인 25평 기준으로 약 8억9천5백만원이며 국민 평형인 전용 면적 84㎡인 34평은 약 12억 중반입니다.
인근 구축들보다 분양가는 저렴한 수준이며, 2004년 9월에 입주한 문정래미안의 현제 시세보다 낮게 분양가가 형성되었습니다. 구 둔촌주공 올림픽파크 포레온의 평균 평당가 3,829만원보다 저렴하게 나왔습니다. 청약에서 경쟁률이 높을 것으로 예상되네요.
조합원 분양가는 평당 약 2,600만원 선이었으며, 59㎡이 약 6.5억원 그리고 84㎡이 약 8.5억으로 분양되었습니다.

부동산 규제가 풀렸지만 송파구는 서초구, 강남구와 함께 여전히 청약과열지구(투기과열지구)이며 분양가 상한제 적용을 받는 지역입니다. 바뀐 청약 제도로 인하여 작은 평수는 추첨 비중이 확대되고 중대형 평수들은 가점 비중이 확대되었습니다.
전용면적 60㎡ 이하는 가점 40%와 추첨 60%로 선정, 전용 면적 60㎡ 이상 85㎡ 이하는 가점 70%와 추첨 30%로 선정, 그리고 전용 면적 85㎡ 이상은 가점 80%와 추첨 20%로 입주자를 선정합니다.
분양금액 9억 이상이지만 특별공급 물량도 배정되어 있고 중대금 대출도 전액 가능합니다. 주택처분서약이 폐지되었으며 일시적 1가구 2주택도 기한이 3년으로 늘었기 때문에 기존주택 처분에 대한 부담도 감소하였습니다.
2) 입지분석
아래 지도에서 확인할 수 있듯이 파란색 위치 표시인 예전 뉴파크팰리스아파트 자리가 힐스테이트 e편한세상 문정의 위치입니다.
- 근처 학교: 서울 문정초, 서울 문덕초, 문정중, 문정고, 송파중, 송례중, 오륜중, 한림연예예술고, 문현고, 오금고 등
- 근처 전철역: 경찰병원역(3호선), 개롱역(5호선), 문정역(8호선), 위례IC, 송파IC

교육환경은 단지에서부터 사거리만 지나면 문정초등학교와 문정중학교에 도달할 수 있습니다. 인근이 학교와 아파트단지로 둘러싸여 있기 때문에 유해시설도 없고, 생활 인프라가 편리하다는 것이 장점입니다. 송파중, 송례중, 오륜중, 문현고, 오금고, 한림예술고 등이 인근에 있습니다. 배정초는 문정초등학교이며 중학교는 강동송파 4학교군, 고등학교는 강동송파학교군에 배정됩니다.
교통환경은 도보 역세권은 아니지만 근처의 경찰병원역과 가락시장역(3호선), 개롱역(5호선) 그리고 문정역(8호선)에 버스 2 정거장만 지나면 도착할 수 있습니다. 서울외곽순환과 중부고속도로를 타기에 편리한 위치입니다.
장지공원이 인근에 있어 대단지 신축 단지 내 산책과 공원 산책 모두 만족스럽게 할 수 있겠습니다. 매일매일 초록을 보며 걷는다는 건 정말 큰 복이지요.
3) 평면도
49 타입 평면도
49㎡의 평면도입니다. 좌측이 49A, 우측이 49B임을 참고하시길 바랍니다. 3베이인지 2베이인지, 드레스룸 크기 및 펜트리 유/무 차이가 보이네요.


59 타입 평면도
3베이냐 2베이냐의 차이이며, 59 타입에는 모두 팬트리와 드레스룸이 없습니다. 신축 아파트임에도 굉장히 아쉬운 평면도입니다.


74 타입 평면도
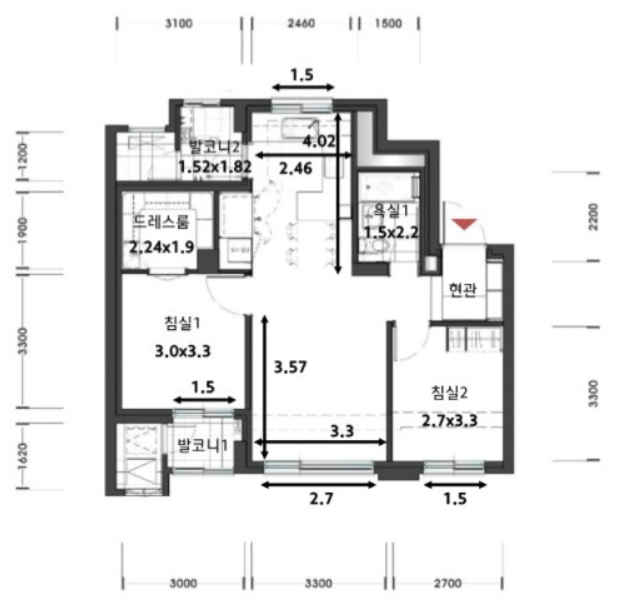
3베이이긴 하나, 안방이 현관문 들어오자마자 있는 독특한 구조입니다. 일반적으로는 거실과 같은 향으로 두는데 독특한 평면도입니다.

84 타입 평면도


지금까지 송파구에 분양 예정인 힐스테이트 e편한세상 문정에 대해 알아보았습니다. 후분양이기 때문에 1년 뒤인 2024년 6월에 입주하는 만큼 자금 계획을 잘 세우셔서 청약하시길 바라겠습니다. 어서 정식 모집공고가 나길 바라 봅니다.
일시적 1가구 2주택 비과세 요건 (2023 최신)
지난 2023년 1월 12일 기획재정부에서 일시적 1가구 2주택자의 특례 요건 중 종전주택 처분기한을 3년으로 연장하겠다고 발표했습니다. 기존엔 종전주택 처분기한이 2년이었는데 부동산 시장이 안
pitapatmyday.com
2023 부동산 취득세율, 취득세 감면 대상 총정리 (최신)
2022년 12월 21일 수요일에 행정안전부에서 부동산 취득세율을 완화하는 개정안을 발표하였습니다. 조정지역대상에서는 2주택부터 취득세가 중과되었기에 주택구입에 부담을 느끼고 일시적 1가
pitapatmyday.com
'모르면 손해인 경제 정보 > 일반 경제' 카테고리의 다른 글
| 경기 6월 분양예정 아파트 (광명센트럴아이파크) (0) | 2023.06.06 |
|---|---|
| 경기도 6월 분양예정 아파트 (운정자이 시그니처) (0) | 2023.06.06 |
| 서울 6월 분양예정 아파트 (청량리 롯데캐슬 하이루체) (0) | 2023.06.05 |
| 서울 6월 분양예정 아파트 (서울대벤처타운역 푸르지오) (0) | 2023.06.05 |
| 서울 6월 분양예정 아파트 (구의역 롯데캐슬 이스트폴) (0) | 2023.06.05 |
댓글